Infografia Venda de mobles
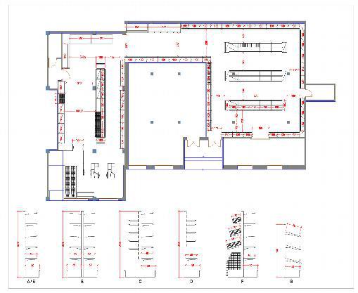
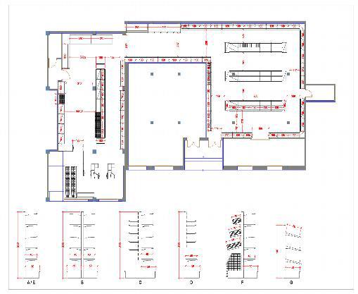
Plànol per a la venda de prestatgeríes per a un supermercat.

Renders realistes

Infografia de supermercat i magatzem en 3D

Infografia d'edificis.

Infografia disseny botigues

Disseny Gràfic y retolacions vehicles

Versión para imprimir | Mapa del sitio
Xavier Ramos - Infoplanols